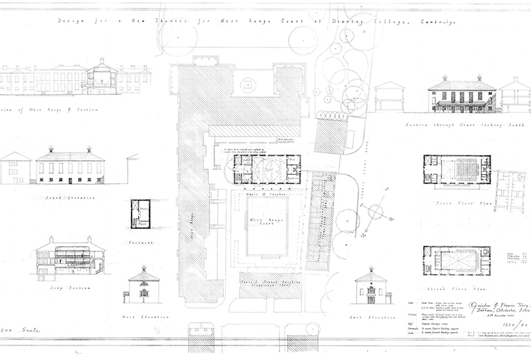
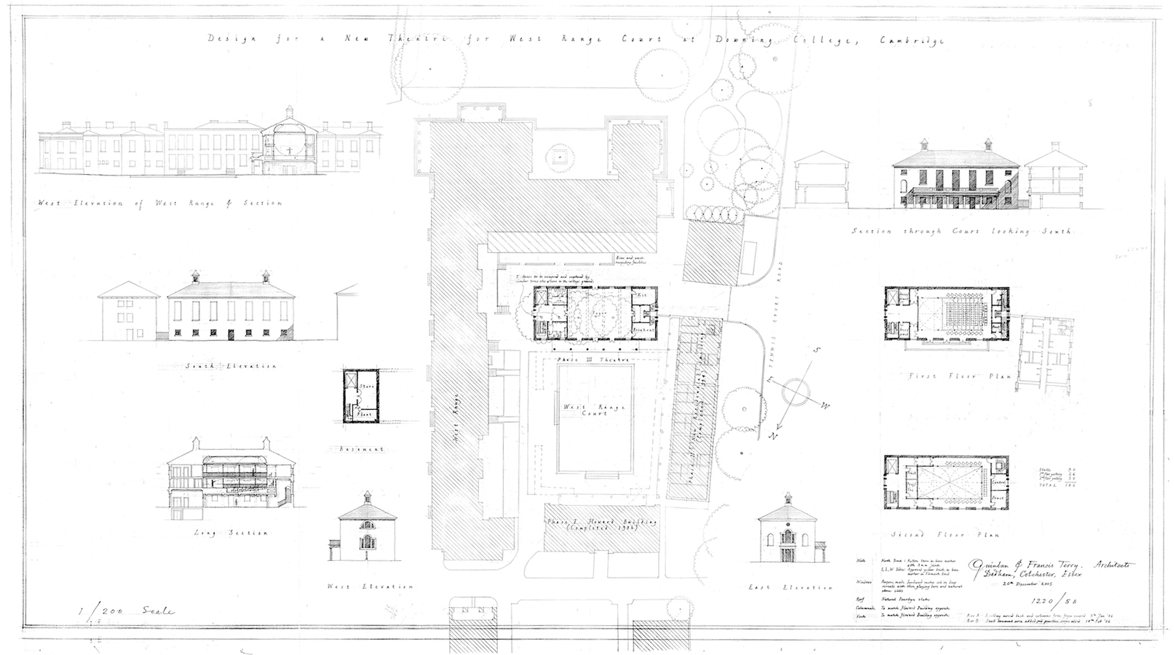
The Howard Theatre, Cambridge
New neo-classical auditorium with proscenium stage — modelled on the Theatre Royal in Bury St Edmunds — for chamber and amplified music, theatrical productions and conferences.
Information Sheet
New Build The Howard Theatre www.thehowardtheatre.com
Location University of Cambridge, England.
Project Cost £9.4 million (approx. 10.9 million € according to the opening year's conversion rate).
Time Frame Design: 2006-2007. Construction: 2008-2009. Completion: January 2010.
Owner The Howard Foundation D.C., United Kingdom.
Architect(s) Quinlan Terry Architects, United Kingdom qftarchitects.com
Theatre Planner(s) Theatre Projects Consultants, United Kingdom theatreprojects.com
Seat Count 160-seat neo-classical performance space with proscenium stage.
Uses The Auditorium is used for conferences, concerts (chamber and amplified music), and theatrical productions.
Services Comprehensive acoustics consulting services from early design to commissioning of the completed building.
Team Thomas Wulfrank, project manager, Eckhard Kahle, Kahle Acoustics.














